Henry street

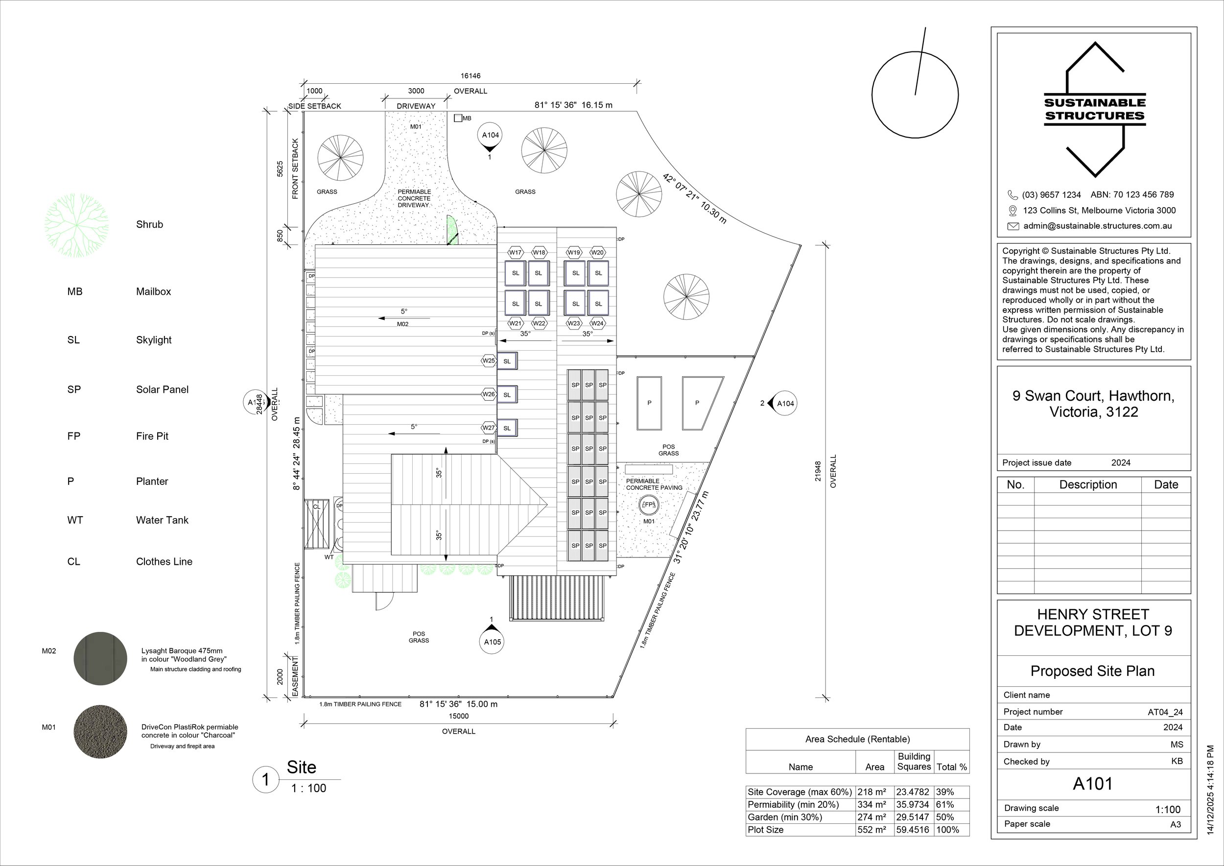
The Henry Street Project is a double storey family home designed with accessibility, sustainability and flow of living to allow for the occupants to live, grow and change in the space. Utilising a deep Pale Eucalypt Colorbond Standing Seam cladding for the double storey modern gable portion of the building helps to create a striking architectural feature, while still maintaining a lower profile within the neighbourhood context. The garage façade has a split brick and render finish, utilising recycled materials, to create a juxtaposition between the two areas.

The short entry hall helps to create a separation between the busyness of the outside world and the large open plan living, kitchen, dining at the rear with large windows to flood the area with plentiful natural light. The open plan area seamlessly extends to a covered deck and intimate side yard, enhancing connection with the outdoors.

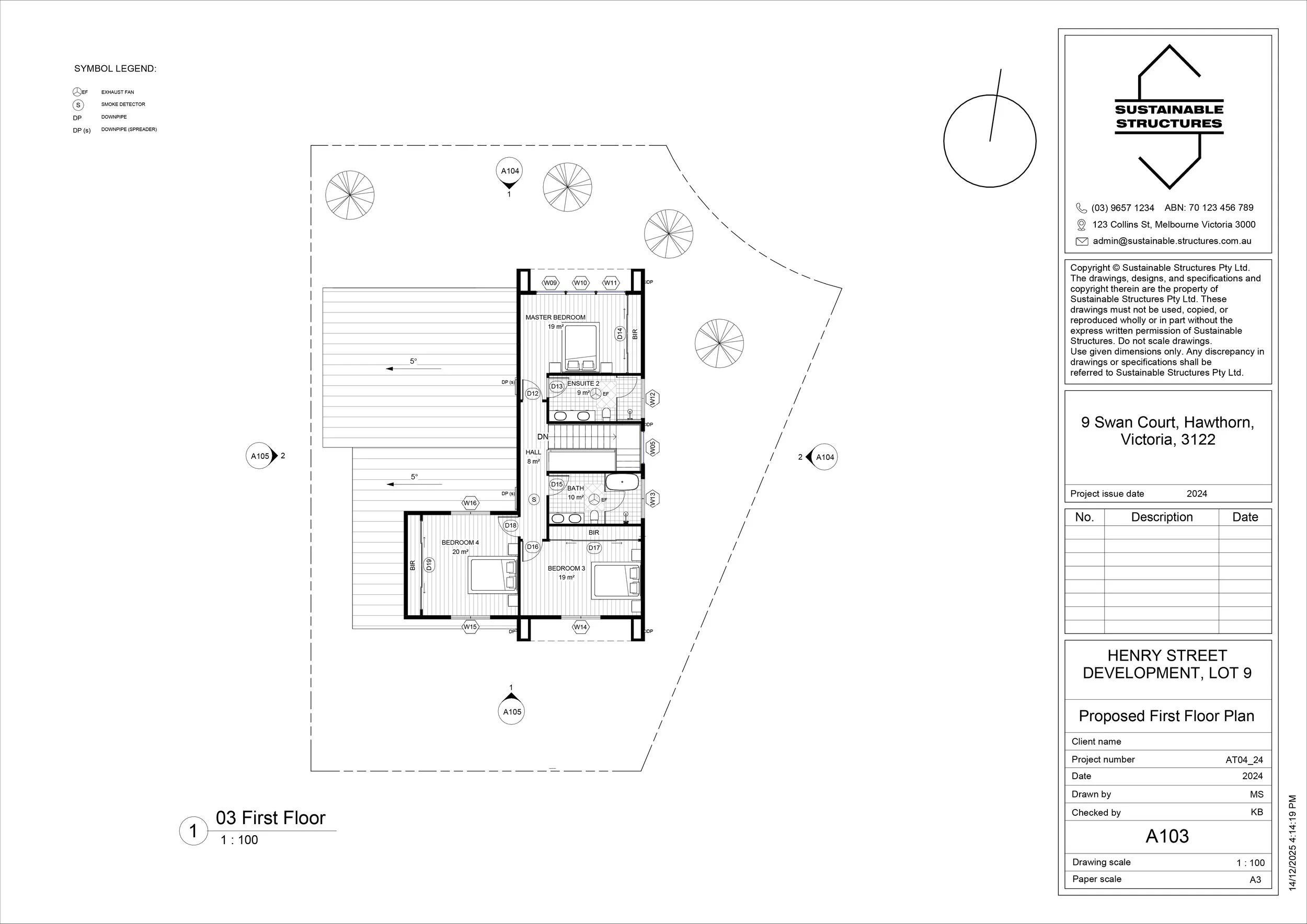
The upper level consists of 3 private bedrooms, one being a private master suite with raked ceilings and large skylights giving grandeur to the space, and 2 bathrooms. These skylights continue through the hallway to help capture additional light.

Previous
Previous

The Beach House

Next
Next

Church Street